
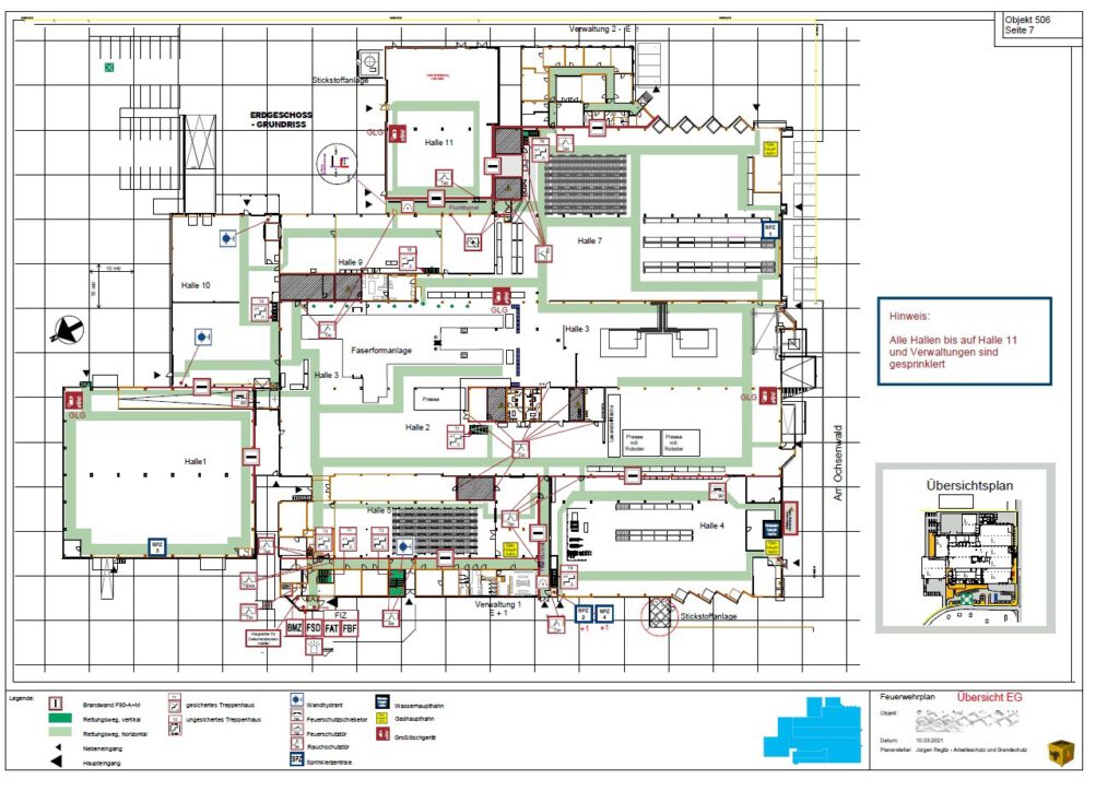
Feuerwehrpläne
Feuerwehrpläne und Laufkarten
für FIZ und Feuerwehr

Brandschutzpläne
Brandschutzpläne zu Ergänzung
der Bauunterlagen

Flucht- und Rettungspläne
Rettungspläne und lagerichtige Standortpläne

Notfallaushänge
Notfallaushänge für alle Gebäude

